Floor Plans

At St. James Place, every home is designed for comfort, style, and ease, with layouts ranging from cozy apartments to spacious patio homes. Each building has its own personality, so you can choose the vibe that feels like you.

Nestled among lush greenery, our Garden Homes feel like a private retreat while keeping you close to all the action of St. James Place. These homes offer charming touches like tray ceilings, generous patios, and drive-up parking, making coming and going a breeze.

Highlights

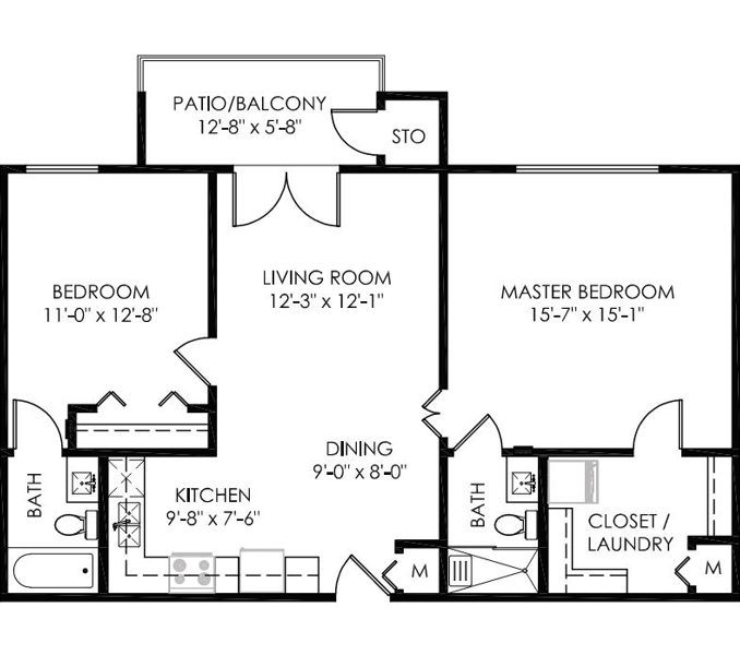
  • Spacious 1,008 sq ft • 2 bed / 2 bath
  • Private patios and backyard views
  • Designer kitchens and walk-in showers
Garden Home
Garden Home
1,008 sq. ft.
2 Bedroom
2 Bath

Our largest and most luxurious option, Patio Homes give you space to spread out—ideal for hosting family, crafting, or simply enjoying a little more elbow room. High ceilings, garages, and serene lake views make these homes feel like your forever home, with more fun built in.

Highlights

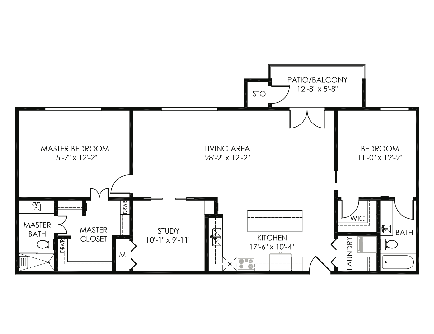
  • 1,665–2,100 sq ft • 2 bed / 2 bath + den
  • Cathedral ceilings and crown molding
  • Attached garages and lakeside views
Bienville Patio Home
Bienville Patio Home
1,665 sq. ft.
2 Bedroom
2 Bath

Perfect for those who want to be at the heart of the community, these apartments offer easy access to dining, events, and shared spaces. With a mix of courtyard and koi pond views, they blend convenience with beauty in every direction.

Highlights

  • 619–1,583 sq ft • 1–2 bed / 1–2 bath (some with den)
  • Private patios or balconies
  • Views of courtyards, koi ponds, and oak trees
The Iris
The Iris
619 sq. ft.
1 Bedroom
1 Bath
The Gardenia
The Gardenia
872 sq. ft.
2 Bedroom
1.5 Bath
The Camellia
The Camellia
966 sq. ft.
2 Bedroom
2 Bath
The Wisteria
The Wisteria
1421 sq. ft.
2 Bedroom
2 Bath
The Plantation
The Plantation
1491 sq. ft.
2 Bedroom
2 Bath
The Acadian
The Acadian
1,020 sq. ft.
2 Bedroom
2 Bath
The Magnolia Deluxe
The Magnolia Deluxe
1,421 sq. ft.
2 Bedroom
2 Bath

Evangeline is where sophistication meets Southern charm. Featuring some of our most spacious apartment layouts and stunning lake views, these residences combine upscale living with a warm, welcoming feel.

Highlights

  • Multiple layouts, including Lafayette Custom, Grande, and Orleans
  • Larger kitchens and open living spaces
  • Scenic lake and garden views
The Orleans Custom
The Orleans Custom
975 sq. ft.
1 Bedroom
1 Bath
The Lafayette Custom
The Lafayette Custom
1,292 sq. ft.
2 Bedroom
2 Bath
Lafayette Grande w/ Den
Lafayette Grande w/ Den
1,570 sq. ft.
2 Bedroom
2.5 Bath
Can I customize my home before moving in?

Absolutely. Many St. James Place residents choose finishes like countertops, flooring, and paint colors to reflect their style. Our team will walk you through available options so that when you move in, it already feels like home.